ÜldinfoMüüa uued A energiaklassiga 5-toalised Purpuri tn eramud Ihastes. Majad valmivad sügis/talv 2026.a. Võimalik ette broneerida!
Köögimööbli ja garderoobide võimalus müügihinnas, küsige lisainfot!
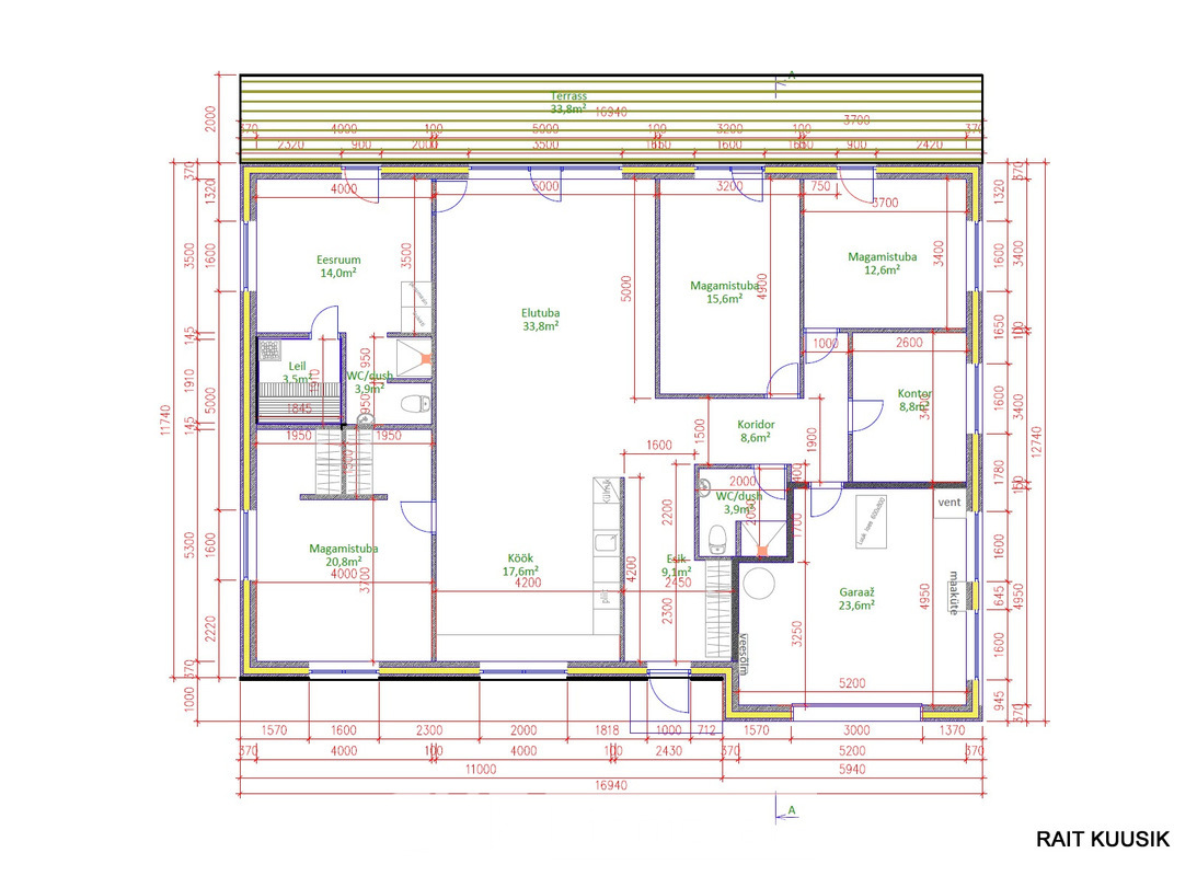
Planeeringu koosseisu kuuluvad 4 magamistuba suurustega 8,8 m2 – 20,8 m2, avatud köögiga elutuba 51,4 m2, leiliruum, sauna eesruum, esik, koridor ja garaaž. Majas on 2 wc-d ja 2 dušši. Suures magamistoas on 2 eraldi walk-in garderoobi. Sauna eesruumist, elutoast ja kahest magamistoast pääseb maja taha avanevale lõunapoolsele terrassile.
Majadel saavad olema erinevad välis-ja siseviimistluse lahendused.
A energiaklassiga monoliitbetoon majad. Väliseinad 220 mm raudbetoon + 150 mm PIR soojustusplaat.
Vesipõrandaküte maakütte baasil + soojustagastusega ventilatsioonisüsteem.
Telia valguskaabel. Peakaitse 3 X 16 A.
Hind sisaldab lõpliku siseviimistlust koos san.tehnikaga. Müügihind sisaldab käibemaksu.
Rahulik ja looduskeskne Ihaste linnaosa. Valgustatud kergliiklustee ühendus linnaga, bussipeatused 300 m.
Igasuguse lisainfo saamiseks palun helistage või saatke e-mail. Objektiga tutvumiseks palume aja ette broneerida.
Võtame müüki ja üürile Teie kinnisvara. Aitame Teid laenu taotlemisel, kinnisvara seadustamisel ja hindamisel.
Meie kaudu laenulepingu tasude soodustused.
CKE Kinnisvara OÜ on aktiivselt tegutsenud alates 2009 aastast ning on Eesti üks suurimaid kinnisvara vahendusega tegelevaid ettevõtteid. CKE Kinnisvara OÜ kontorid asuvad Tallinnas, Tartus, Pärnus ja Kuressaares ning maaklerid tegutsevad aktiivselt üle Eesti.
Pakume:
- – tasuta konsultatsioon ja hinnang teie kinnisvarale
- – professionaalsed fotod
- – aerofotod ja -videod drooniga
- – korrektsed lepingud
- – õigusabi
- – kolimisteenus
Usalda oma kinnisvara müük ja üürimine meie maakleritele.
- Energiaklass A
- Korruseid 1
- Ehitusaasta 2026
- Valmidus: uus
- Omandivorm: kinnistu
- Plekkkatus
- Katastritunnus: 79517:079:0011
- Ühistransport
- Garaaž
- Parkett
- Toad eraldi
- Pakettaknad
- Rõdu 33.8m2
- Parkimine tasuta
- Garderoob
- Dušš
- Saun
- Maaküte
- Põrandaküte
- Avatud köök
- Internet
















