ÜldinfoMüüa uued A energiaklassiga 3, 5 ja 6-toalised ridaelamud uues elamurajoonis Kõrvekülas. Võimalik ette broneerida! Kasutusluba!
Köögimööbli ja garderoobide võimalus müügihinnas, küsige lisainfot!
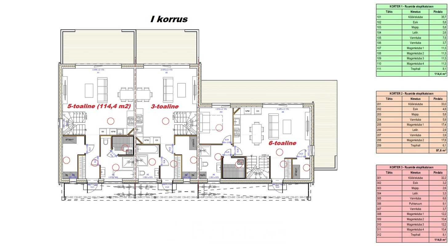
3-toaliste ridaelamute planeeringus asuvad esimesel korrusel avatud köögiga elutuba, vannituba-wc, tehnoruum-panipaik ja koridor. Teisel korrusel 2 magamistuba koos walk-in garderoobiga, duširuum-wc, leiliruum ja trepihall. Üldpinnast 126,4 m2 moodustab köetav pind 97,6 m2 ja terrass 15,9 m2.
5-toalistel ridaelamute esimesel korrusel avatud köögiga elutuba, vannituba, leiliruum, koridor ja tehnoruum-panipaik. Teisel korrusel 4 magamistuba, trepihall ja duširuum-wc. 5-toalised ridaelamud on pakkumises kahes suuruses. Suuremad 5-toalised üldpinnaga 132,4, millest köetav pind mooduatsab 114,4 m2 ja terrass 18,2 m2. Väiksemad 5-toalised köetava pinnaga 110,5 m2 ja terrass 17,9 m2.
6-toalise ridaelamu planeeringu koosseisu kuuluvad esimesel korrusel avatud köögiga elutuba, tuba, duširuum/wc, leiliruum, majapidamiseruum ja esik. Teisel korruse planeeringus trepihall, 4-magamistuba suurustega 10,4 m2 – 12,2 m2 ja duširuum-wc. Esimese korruse toast ja elutoast pääseb lõuna-läänepoolsele küljele avanevale suurele terrassile.
Ridaelamutel erinevad viimistluslahendused.
A energiaklassiga monoliitbetoon majad. Väliseinad 220 mm raudbetoon + 150 mm PIR soojustusplaat. Bokside vaheseinad 200 mm raudbetoon.
Vesipõrandaküte Flexiti õhk-vesi soojuspumba baasil. Lisaks Flexiti soojustagastusega ventilatsioonisüsteem. Kaasaegsed seadmed, millel puuduvad välised agregaadid. Kõikidel boksidel on individuaalsed agregaadid + veepehmendussüsteem.
Pakutavad ridaelamud:
* 3-toalised ridaelamud Kõrve tn 19/1 ja Kõrve tn 21/1 köetava pinnaga 97,6 m2 + terrass 15,9 m2 hinnaga 239 000 eurot.
* 5-toalised erinevad ridaelamud köetava pinnaga alates 110,5 m2 – 114,4 m2, hinnaga alates 249 000 eurot.
* 6-toaline ridaelamu Kõrve tn 19/1-3 köetava pinnaga 114,0 m2 + terrass 35,2 m2 hinnaga 264 000 eurot.
Ridaelamutel on erinevate suurustega terrassid ja aiaga piiratud hooviala 169,7 m2 – 704,2 m2. Majade vahelisel alal lastele mänguväljak ja pargipingid. Ridaelamute kõrval kergliiklustee ja Tartu valla parkmets.
Kõik hinnad sisaldavad käibemaksu. Piltidel nähtav sisustus on illustratiivne!
Asub kõikide kommunikatsioonidega populaarses uues elamurajoonis Kõrvekülas. Valgustatud asfaltkattega sõidu-ja kõnniteed. Kergliiklustee ühendus Tartu linnaga. Kõrvekülas asub kaasaegne Kõrveküla Põhikool, lasteaed, kauplus COOP ja Tartu linnaliini bussipeatused. Linnapiiril suured toidukauplused, Terminali tankla ja valmiv suur K-Rauta ehituspood.
Igasuguse lisainfo saamiseks palun helistage või saatke e-mail. Objektiga tutvumiseks palume aja ette broneerida.
Võtame müüki ja üürile Teie kinnisvara. Aitame Teid laenu taotlemisel, kinnisvara seadustamisel ja hindamisel.
Meie kaudu laenulepingu tasude soodustused.
CKE Kinnisvara OÜ on aktiivselt tegutsenud alates 2009 aastast ning on Eesti üks suurimaid kinnisvara vahendusega tegelevaid ettevõtteid. CKE Kinnisvara OÜ kontorid asuvad Tallinnas, Tartus, Pärnus ja Kuressaares ning maaklerid tegutsevad aktiivselt üle Eesti.
Pakume:
- – tasuta konsultatsioon ja hinnang teie kinnisvarale
- – professionaalsed fotod
- – aerofotod ja -videod drooniga
- – korrektsed lepingud
- – õigusabi
- – kolimisteenus
Usalda oma kinnisvara müük ja üürimine meie maakleritele.
- Energiaklass A
- Korruseid 2
- Ehitusaasta 2026
- Valmidus: uus
- Katastritunnus: 79403:002:1057
- Ühistransport
- Parkett
- Toad eraldi
- Pakettaknad
- Parkimine tasuta
- Dušš
- Saun
- Vann
- Põrandaküte
- Avatud köök
- Internet
- Turvauks
























































