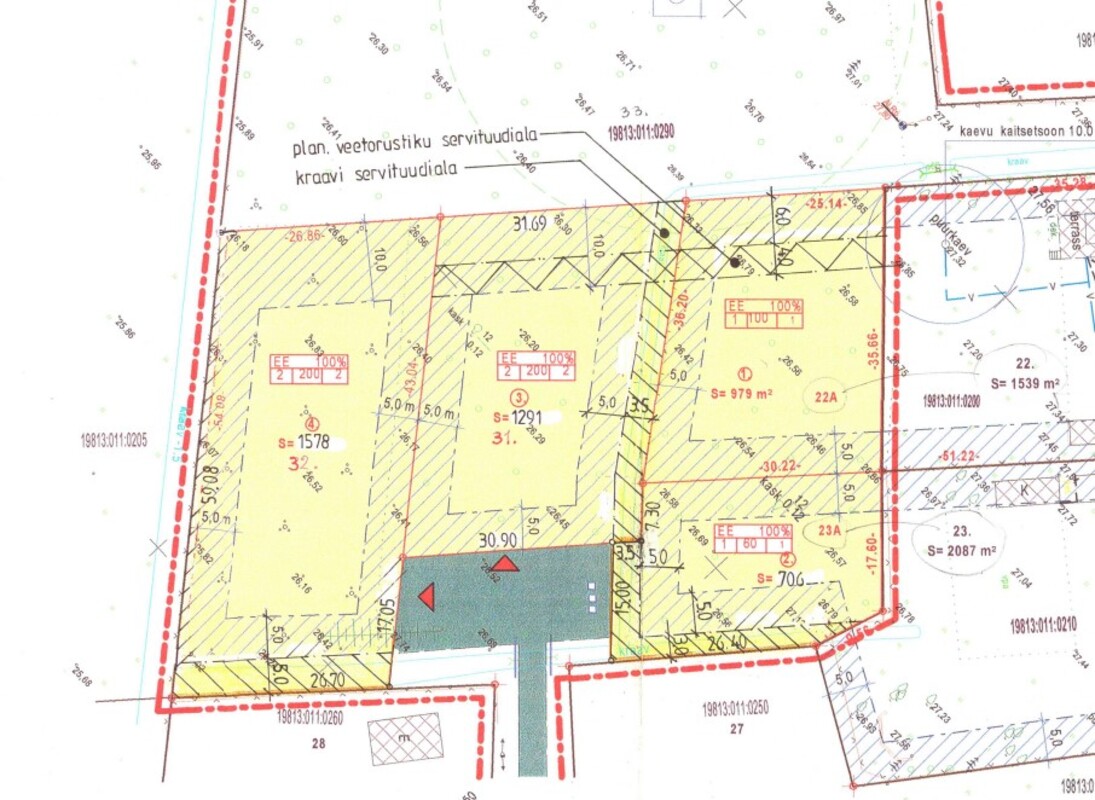
ÜldinfoMüüa elamumaa. Detailplaneering on kehtestatud.
Ehitada võib ühe elamu ja ühe abihoone.
Ehitusalune pind 200 m2 ja kõrgus 7,5 m.
Katuse kalle 30-45*, hooneviis lahtine.
Elekter, vesi ja kanalisatsioon on kinnistu piiril.
Elektriga liitumine on tavatingimustel (ampripõhine).
Liitumine vee ja kanalisatsiooniga on tasuta.
Lähedal asub bussipeatus 1,5 km, kauplus 2,8 km, kool ja lasteaed 8,5 km ning Keila jõgi 300 m.
Helistage ja küsige lisa.
CKE Kinnisvara OÜ on aktiivselt tegutsenud alates 2009 aastast ning on Eesti üks suurimaid kinnisvara vahendusega
tegelevaid ettevõtteid. CKE Kinnisvara OÜ kontorid asuvad Tallinnas, Tartus, Pärnus ja Kuressaares ning maaklerid
tegutsevad aktiivselt üle Eesti.
Pakume:
- – tasuta konsultatsioon ja hinnang teie kinnisvarale
- – professionaalsed fotod
- – aerofotod ja -videod drooniga
- – korrektsed lepingud
- – õigusabi
- – kolimisteenus
Usalda oma kinnisvara müük ja üürimine meie maakleritele.
- Omandivorm: kinnistu
- Otstarve: elamumaa
- Katastritunnus: 19813:011:0004










