ÜldinfoMüüa suure kinnistuga uus kõrgekvaliteetse siseviimistluse ja sisustusega 5-toaline A-energiaklassiga eramu, tupiktänava lõpus, Laane külas, Kambja vallas.
PLANEERING:
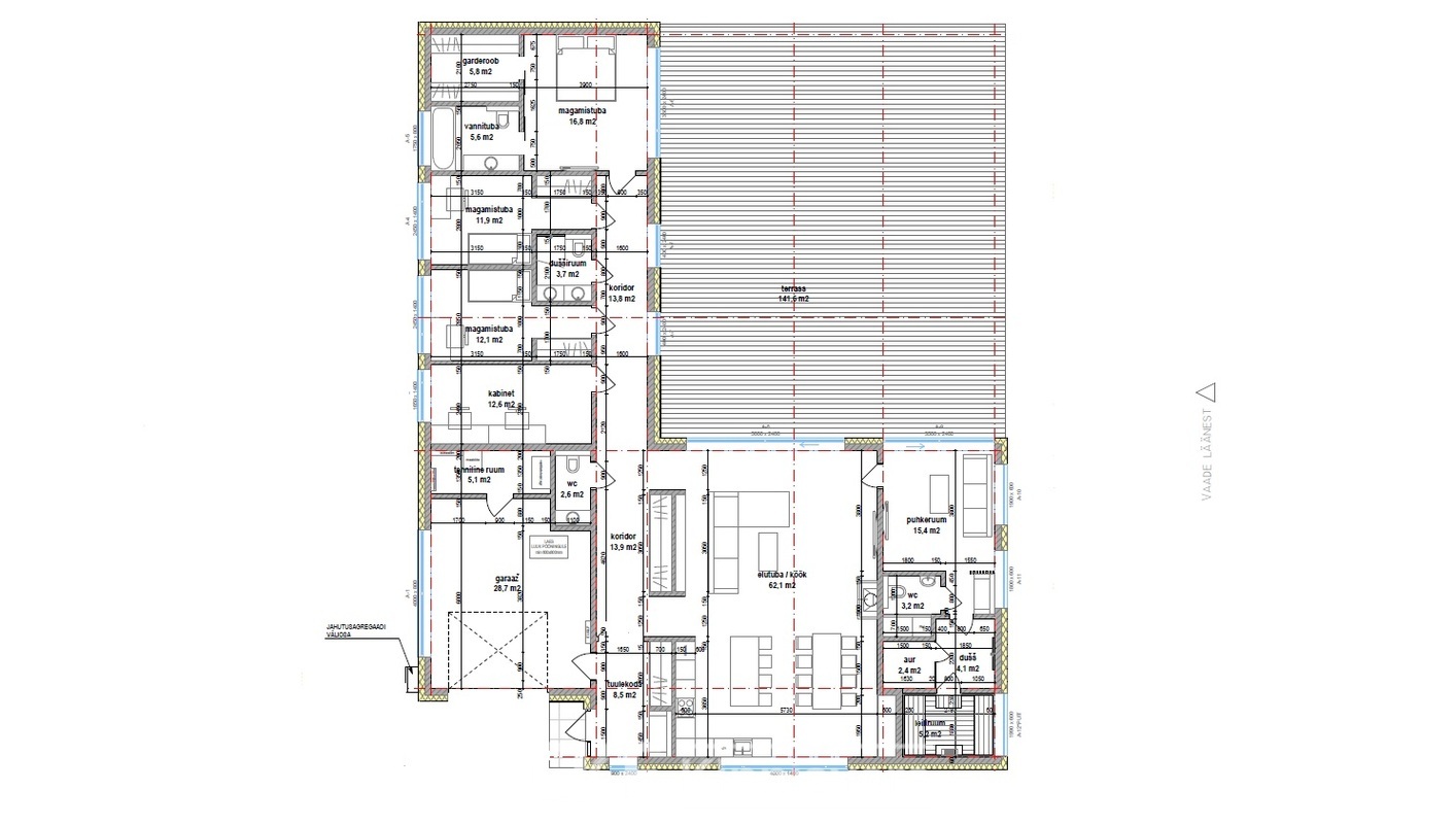
Kõrgete lagedega ühetasapinnaline planeering. Planeeringu kooseisu kuuluvad avar elutuba koos avatud köögiga, 4 magamistuba suurustega 11,9 – 28,2 m2, saunakompleks koos majapidamisruumiga, eraldi duširuum, eraldi wc, avar koridor, esik, garaaž ja tehnoruum.
Suure magamistoa koosseisu kuulub privaatne vannituba-wc ja walk-in garderoob. Saunakomleksi kooseisu kuuluvad puhkeruum, pesuruum, aurusaun (veel viimistlemata), leiliruum ja majapidamisruum-wc. Elutoast, suurest magamistoast ja sauna eesruumist pääseb suurele lõuna-läänepoolsele terrassile. Terrassil on süvendiga gillimisala. Üldpinnast 374,9 m2 moodustab köetav pind 233,3 m2 ja terrass 141,6 m2. Majas on kokku 3 pesuruumi ja 4 wc-d.
ÜLDINFO JA TEHNOSÜSTEEMID:
Täislahendusega köögimööbel koos tehnikaga. Majal on sisene ja väline LED lampidel energiasäästlik valguslahendus. Ruumides lae-ja seinavalgustid. Tubade põrandatel naturaalne kalasaba puitparkett. San.ruumides kvaliteetne san.tehnika.
Maja kütteallikaks on vesipõrandaküte NIBE maakütte baasil. Kõikide ruumide temperatuuri saab digitaalsete termostaatide abil eraldi reguleerida. Elutoas loob hubasust külmadel talveõhtutel asuv kamin. Hea sisekliima loob kõiki ruume ühendav soojus-ja jahutusventilatsioonisüsteem + konditsioneer. Katusel 9 kw päikesepaneelid koos 15 kw hübriiinverteriga.
Ostja soovi korral müüakse eramu piltidel nähtava sisustuse ja tehnikaga v.a lastetoa mööbel.
TEHNILINE INFO:
Autarco hübriidinverter 15kw.
Autarco 9kw päikesepaneelid.
Maaküttepump Nibe S1255.
Ventilatsiooni seade Vallox 245 vesikalorifeeriga + jahutuskalorifeeriga.
Midea konditsioneer lae siseste kassettidega x 2.
Miridon vee-ja rauaeemaldus seadmed.
Tsentraaltolmuimeja.
Bosch köögitehnika.
LG pesumasin + LG kuivati.
Huum keris+wifi juhtimisega pult.
Balteco mullivann.
LG telerid.
Hans Grohe segistid i-boxidega.
Villeroy&boch wc potid.
Kõiki tehnosüsteeme saab juhtida üle võrgu. Peakaitsme suurus 3 X 32 A.
KINNISTU JA ASUKOHT:
Kinnistu maja tagune ala on aiaga piiratud.
Asub vaikses uuselamurajoonis Laane külas, tupiktänava lõpus, Tartu linnapiiri lähedal.
Igasuguse lisainfo saamiseks palun helistage või kirjutage e-kiri. Majaga tutvumiseks palume aja eelnevalt ette broneerida.
Võtame müüki ja üürile Teie kinnisvara. Aitame Teid laenu taotlemisel, kinnisvara hindamisel ja seadustamisel. Meie kaudu laenulepingute soodustused.
CKE Kinnisvara OÜ on aktiivselt tegutsenud alates 2009 aastast ning on Eesti üks suurimaid kinnisvara vahendusega tegelevaid ettevõtteid. CKE Kinnisvara OÜ kontorid asuvad Tallinnas, Tartus, Pärnus ja Kuressaares ning maaklerid tegutsevad aktiivselt üle Eesti.
Pakume:
- – tasuta konsultatsioon ja hinnang teie kinnisvarale
- – professionaalsed fotod
- – aerofotod ja -videod drooniga
- – korrektsed lepingud
- – õigusabi
- – kolimisteenus
Usalda oma kinnisvara müük ja üürimine meie maakleritele.
- Energiaklass A
- Korruseid 1
- Ehitusaasta 2024
- Valmidus: uus
- Kivimaja
- Omandivorm: kinnistu
- Kivikatus
- Katastritunnus: 28301:001:1017
- Kinnine hoov
- Garaaž
- Parkett
- Mööbel
- Toad eraldi
- TV
- Pakettaknad
- Kõrged laed
- Panipaik
- Parkimine tasuta
- Garderoob
- Konditsioneer
- Pesumasin
- Dušš
- Saun
- Vann
- WC ja vannituba eraldi
- Maaküte
- Kamin
- Põrandaküte
- Elektripliit
- Köögimööbel
- Külmik
- Avatud köök
- Turvauks




















































































